• en
  • Epicuria Architectes
    Besançon (25)

    IFPS – Institut de Formation des Professions de Santé

    Un projet centré sur la vie étudiante qui s’ouvre en terrasses sur le paysage et s’inspire de l’âme du lieu.

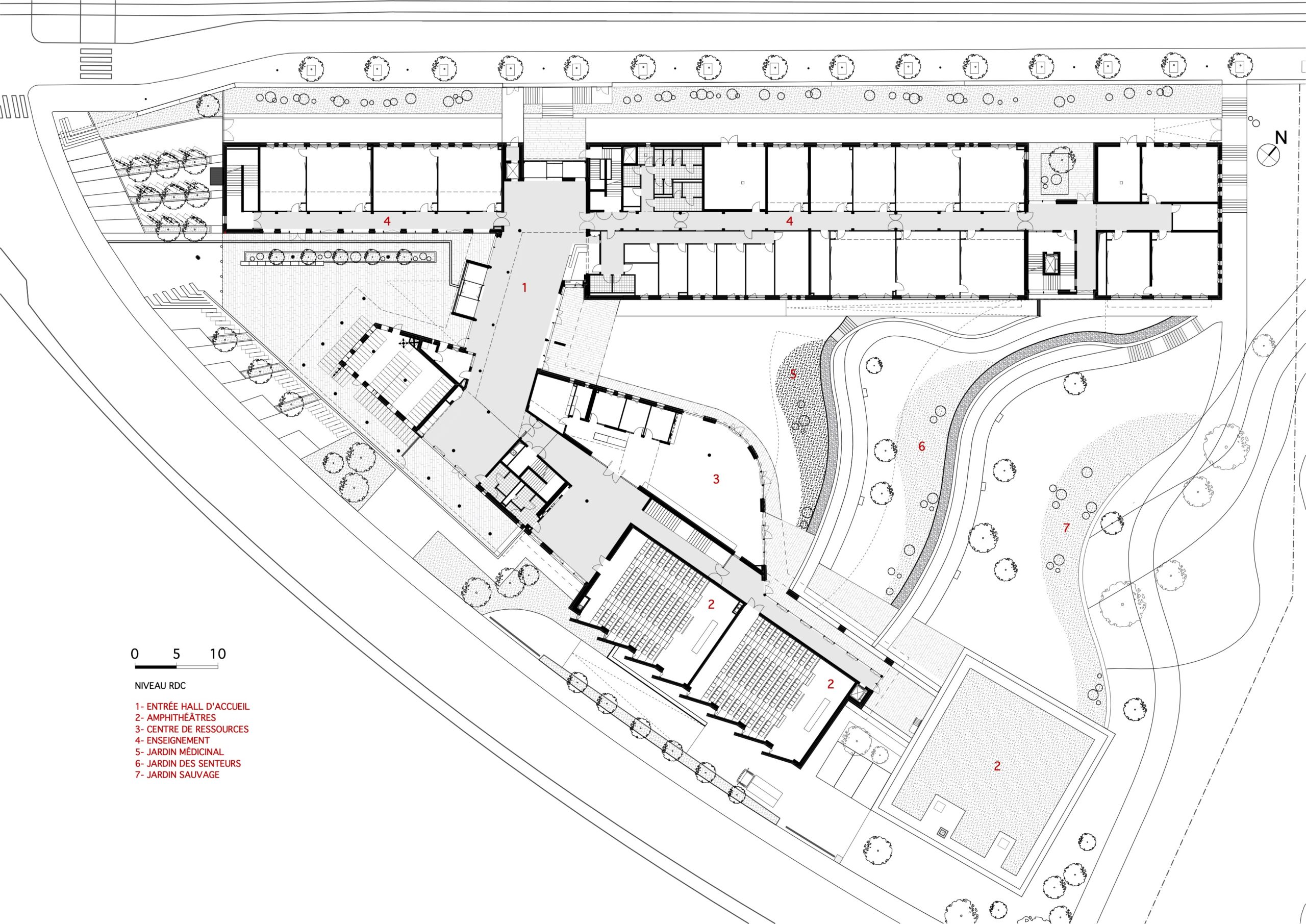
    L’architecture de ce bâtiment a été dictée par la spécificité de ce site particulièrement inspirant. D’une part, il s’amarre à la ville de Besançon, de l’autre, il s’ouvre en terrasses sur le paysage environnant. L’écriture joue sur les courbes et le dénivelé du terrain en double pente. L’idée a ainsi été de construire trois bâtiments en éventails s’organisant autour des espaces destinés à la vie étudiante.

    Les deux bâtiments consacrés aux salles d’enseignement ainsi que ceux abritant les amphithéâtres enserrent le cœur d’îlot destiné aux lieux de vie des étudiants. Les espaces sont ouverts sur l’extérieur, chaleureux, conviviaux, baignés de lumière. Ils sont prolongés par des jardins qui s’étagent le long de la pente dans la perspective de la doline pour en faire un paysage habité, invitant à l’échange et à la rencontre.

    Le projet fait la part belle au bois avec ses 5 amphithéâtres construits en charme, bois local, un choix qui procure une sensation de bien-être, de douceur et de clarté avec une excellente acoustique.

    Les bâtiments s’inspirent également du l’âme du lieu, jouent sur les effets de lumières et de couleurs en déclinant une palette de bleu-gris caractéristique de la région. Les matériaux marient, d’un espace à l’autre, tradition et modernité. Les reflets de la pierre de Chailluz, emblématique de Besançon répondent aux subtils miroitements des différents types d’aluminium utilisés. Un projet qui tisse un lien excep­tion­nel entre la ville et le paysage, au service du savoir et de la recherche.

    Lire plus Lire moins
    Opération
    2024 – Construction d’un bâtiment d’enseignement supérieur comprenant 5 amphithéâtres de 175 à 350 places
    Surface
    7 975 m²
    Coût
    15,7 M€HT
    Avancement
    Lauréat en 2020 – Livré en 2024
    Maîtrise d’ouvrage
    Conseil Régional de Bourgogne-Franche-Comté
    Architecte
    Epicuria Architectes
    Bureaux d’études
    EDE INGÉNIERIE / SIGMA ACOUSTIQUE
    Entreprises
    Opération en corps d’état séparés
    Profil environnemental
    Label E+C-, niveau E4C1
    Charger plus d’images

    Projets similaires

    epicuria-architctes-aix-en-provence

    Bibliothèque Universitaire Les Fenouillères
    Aix-en-Provence (13)

    Voir le projet

    ISEN – Institut Supérieur de l’Électronique et du Numérique
    Caen (14)

    Voir le projet

    Array ( [0] => 15 )

    Restez informés de nos actualités
    et recevez notre

    Newsletter

    S'inscrire